Дом из блоков 135 кв.м. / 135 м2






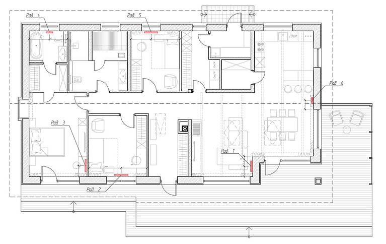
Великолепный проект с просторной террасой, современный одноэтажный дом площадью 135 квадратных метров, который идеально подойдет для семьи из 4-6 человек. В доме одна главная спальня со своим санузлом и выходом на террасу, две отдельные спальни, второй санузел с сауной, большая кухня, переходящая в столовую, которая переходит в гостиную, гардеробная, техническое помещение и большая прихожая.
Особенностью проекта является огромная терраса, протянувшаяся вдоль всей задней части дома с выходом в сад и заворачивающая за угол дома. Это создает дополнительное пространство для отдыха на свежем воздухе и возможность наслаждаться природой.
Дом выполнен из качественных материалов, что гарантирует долговечность и надежность конструкции. Проект предусматривает все необходимые коммуникации и инженерные системы для комфортного проживания.
Если вы мечтаете о собственном уютном доме за городом, этот проект может стать идеальным решением для вас!
Стоимость проекта
ПЛАНИРОВКА ДОМА

Популярные проекты

Андреевский
150 м2
Дом из блоков 81 кв.м
81 м2
Дом из блоков 113 кв.м.
113 м2
Дом из блоков 123 кв.м.
123 м2
Дом из блоков 158 кв.м.
158 м2